El edificio de Piscinas Olímpicas forma parte del complejo deportivo que oficiará de sede para los próximos Juegos Olímpicos de la Juventud (2018), luego la totalidad de las instalaciones se convertirán en el Nuevo Centro de Alto Rendimiento Deportivo Nacional.
Ubicado al sur de la ciudad de Buenos Aires y sobre un predio de 30 hectáreas, el complejo se localiza sobre el nivel más elevado del lugar, procurando reducir el impacto en el paisaje y estableciendo relaciones directas con las vialidades de acceso y el conjunto de edificios restantes.
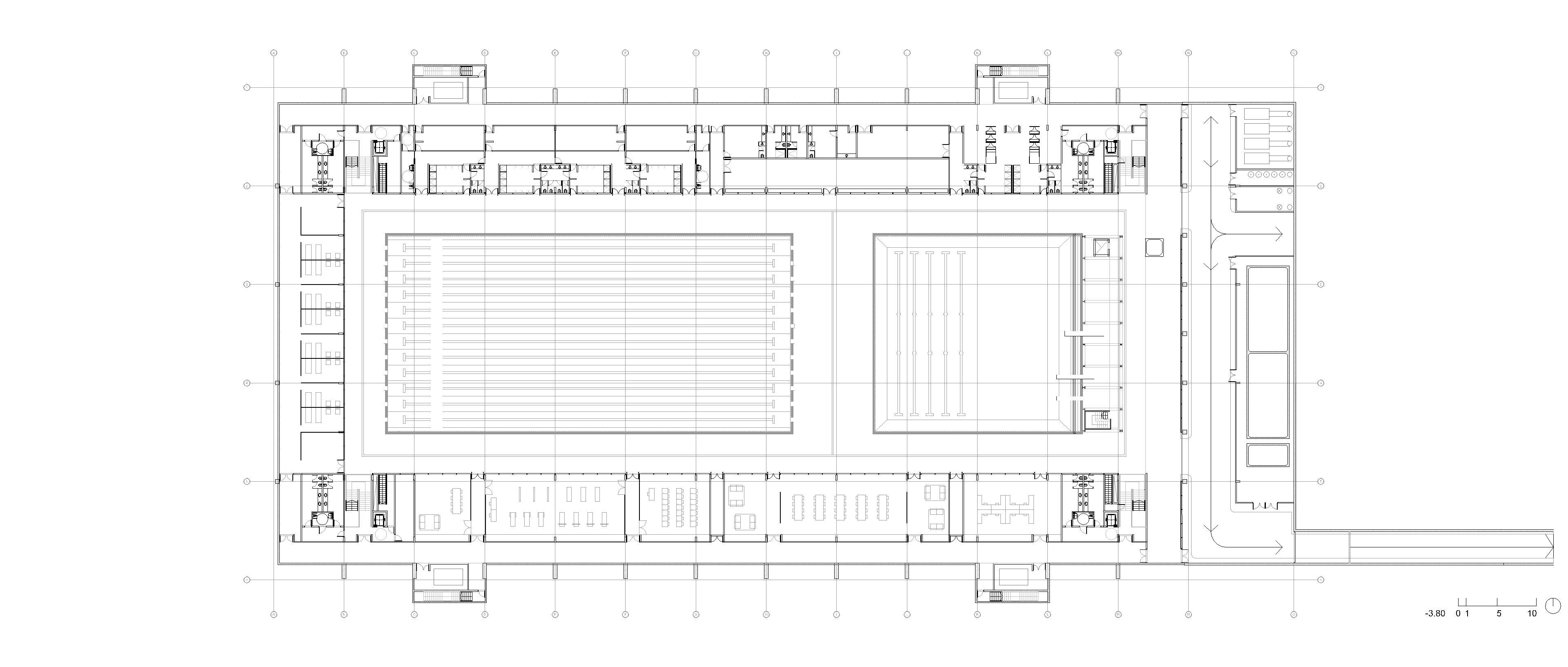
Una piscina olímpica de nado, otra de saltos ornamentales con sus plataformas e instalaciones complementarias (vestuarios, gimnasio, sala de controles, preparación, etc.) conforman el nivel de campo de juego bajo cota cero.
El complejo posee capacidad para 2000 espectadores ubicados en el nivel de acceso en gradas retractiles temporarias y en configuración de competencias, para luego al ser desmontadas, utilizar la superficie lateral a nivel de acceso como espacio de ejercicio y entrenamiento diario una vez finalizado el evento deportivo.
Un sistema de cerramientos de policarbonatos celulares translucidos conforman los laterlaes del recinto, al tiempo que un conjunto de cristales contínuos en relación al nivel cero de acceso vinculan al edificio con el entorno inmediato circundante.












