El proyecto de las casas de Nueva York se desarrolla sobre angostos terrenos, de propiedad pública, en diversos barrios de la ciudad, y tiene como principales objetivos: satisfacer las necesidades habitacionales y contribuir al desarrollo y aprovechamiento del suelo e infraestructura, mediante el completamiento urbano de tales sitios.
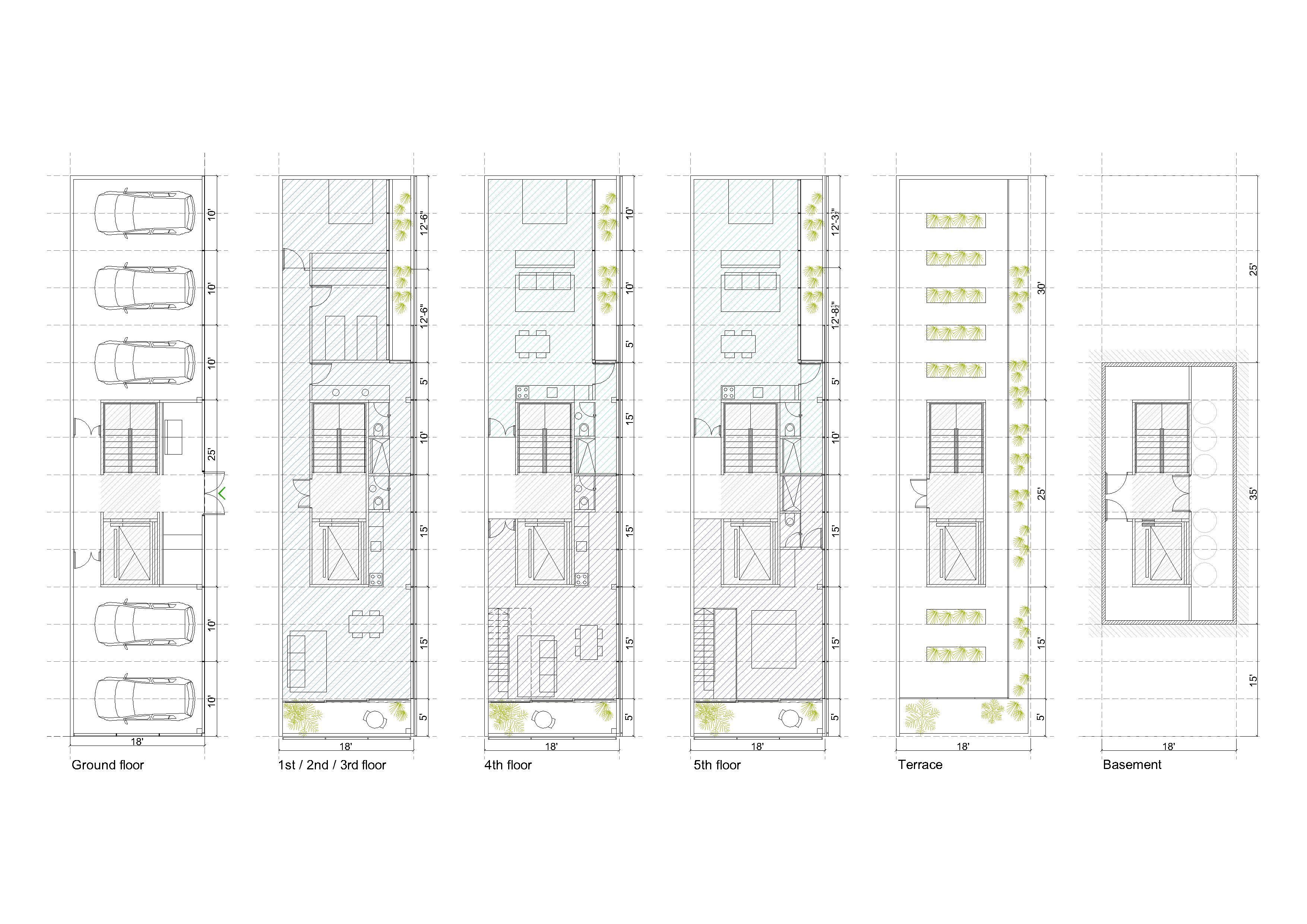
Se desarrolla un sistema de viviendas que se adapta a las condicionantes del sitio, orientaciones, paisaje urbano, tipologías y alturas.
Un sistema de unidades tipo combinables que busca satisfacer las necesidades de confort contemporáneas al tiempo que conformen edificios que establezcan un diálogo de igualdad con el sitio y contribuyan a la construcción del paisaje urbano del cual forman parte constitutiva.
El proyecto propone viviendas contemporáneas asequibles de diversas tipologías, que promuevan la intercambiabilidad de usos, la democratización y accesibilidad de sus usuarios y la universalidad de funcionamiento.
La utilización extensiva e intensiva del suelo promueve la incorporación de diferentes configuraciones de viviendas, y por ello de familias, haciendo uso de la ubicación estratégica del núcleo de circulaciones e instalaciones del edificio. El uso intensivo del suelo también promueve la accesibilidad y apropiación de la terraza del edificio como espacio productivo y de sociabilización de sus habitantes.
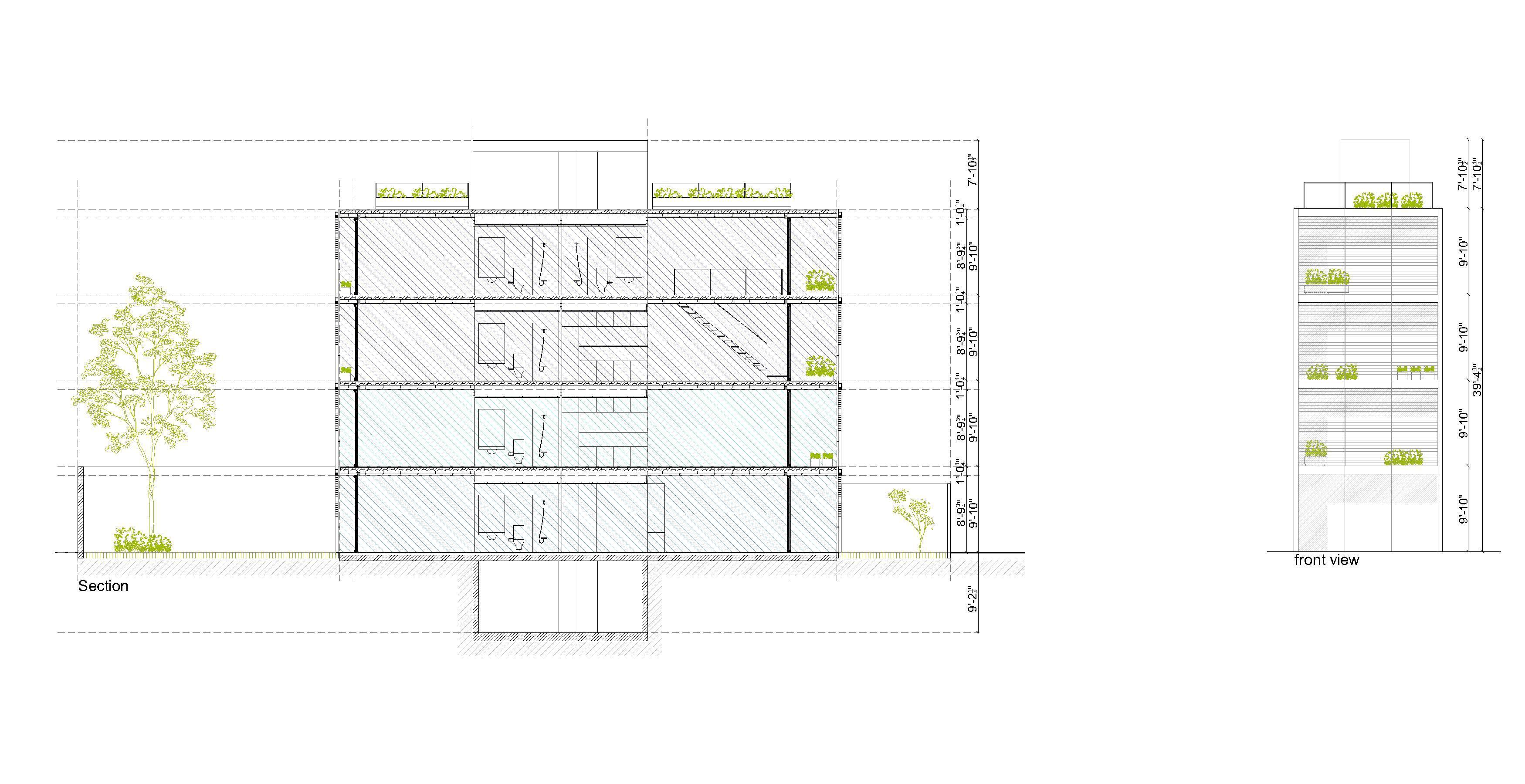
Los edificios de viviendas proponen establecer relaciones termodinámicas específicas con el medio ambiente del cual forman parte, mediante los espacios de transición interior-exterior. Las fachadas adquieren un espesor convirtiéndose en espacios habitables que extienden los límites de las unidades de viviendas al tiempo que reducen los consumos energéticos de climatización de las mismas.
La construcción de los edificios de viviendas se proyecta con elementos industrializados metálicos, que persiguen el objetivo de economía de recursos, rapidez de montaje y reducción de mantenimiento durante la vida útil de las viviendas. Todos los aspectos mencionados conforman una visión integral de proyecto, capaz de contribuir a la continua construcción y transformación del paisaje urbano de Nueva York.
Concurso Internacional de viviendas en Nueva York.
Proyecto: Federico Marino, arq.
Imágenes: Matias Llere, arq.



















