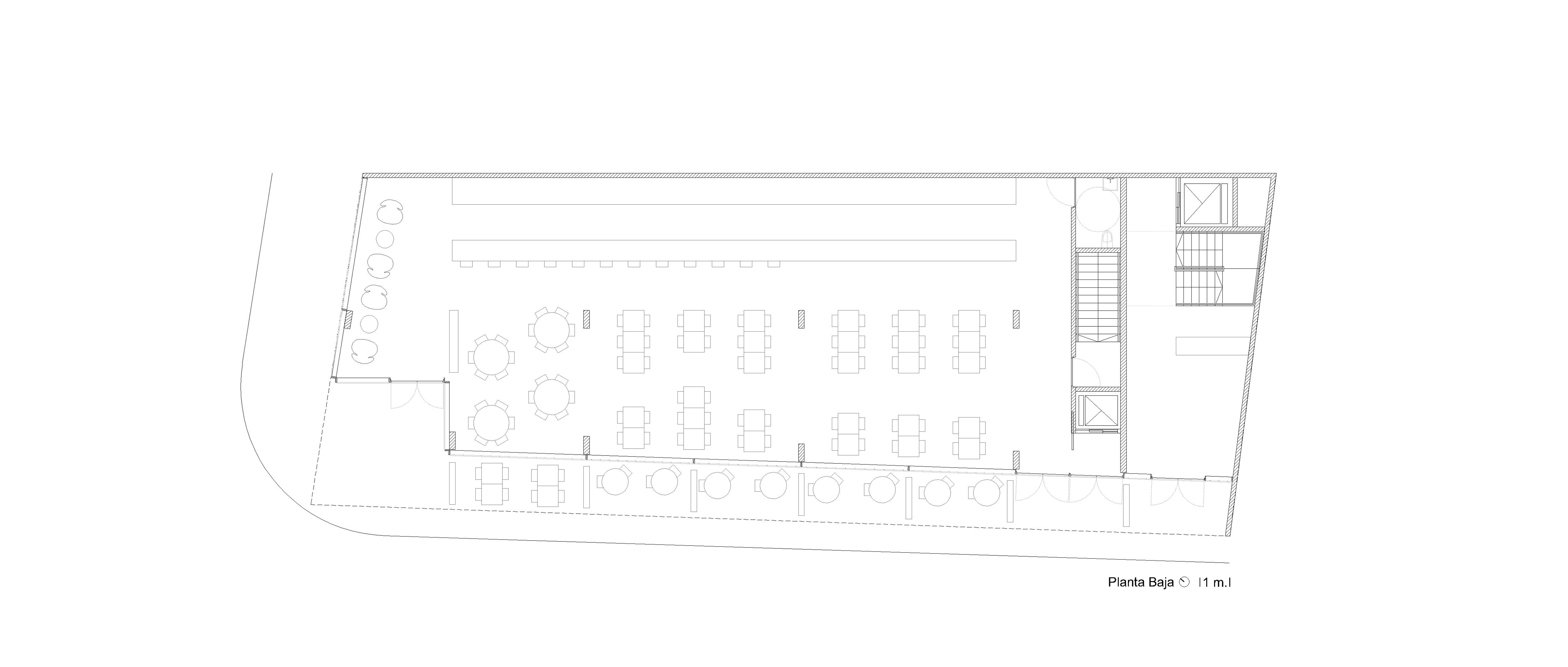
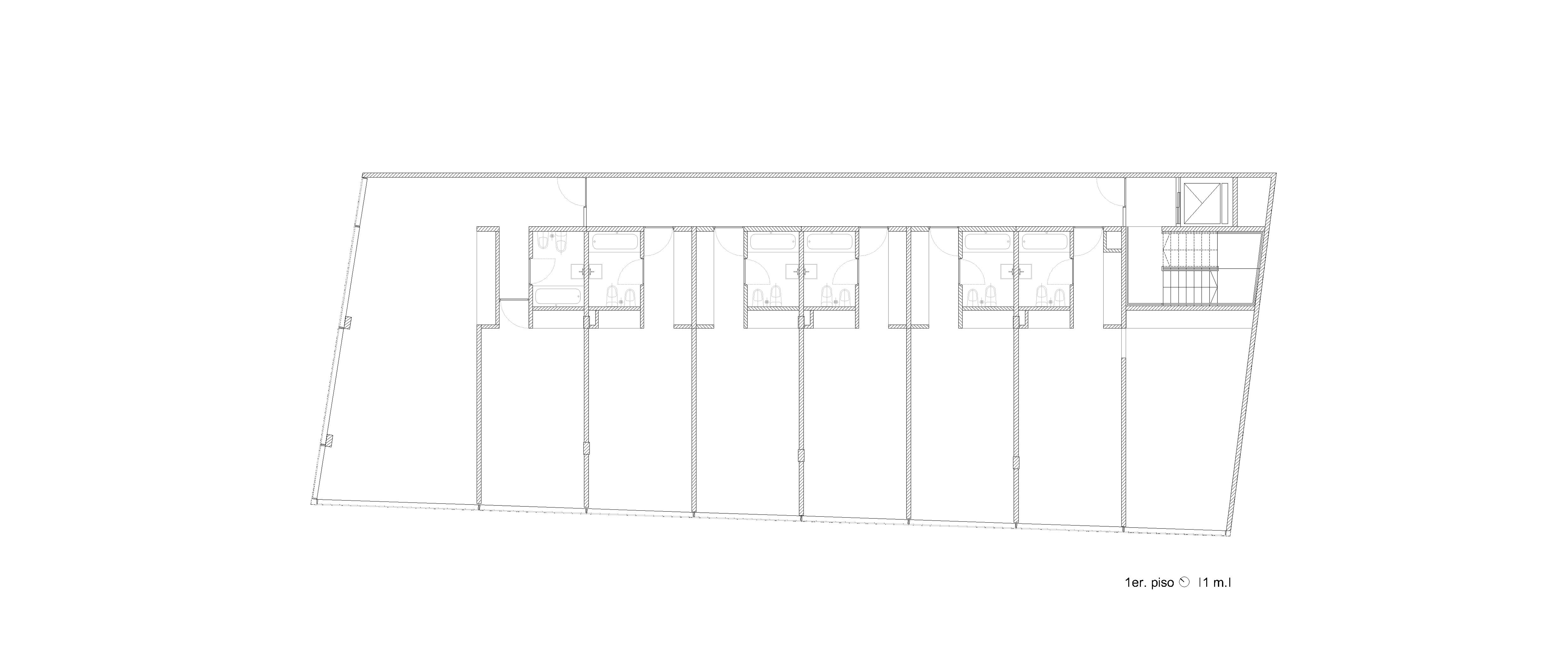
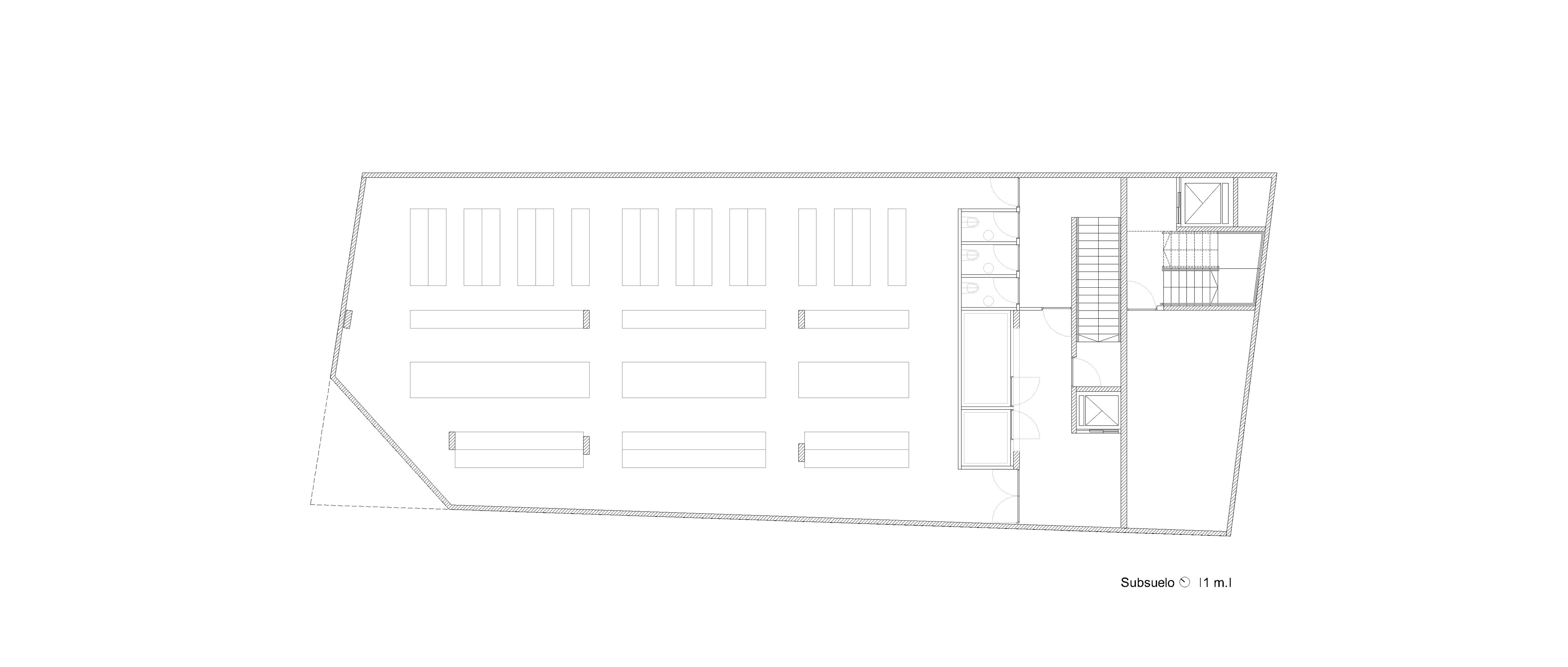
El edificio de usos mixtos, ubicado en el barrio de Palermo de la Ciudad de Buenos Aires, se desarrolla en tres niveles programaticos diferenciados.
El nivel de acceso, en relacion directa con el estrecho pasaje, contiene un restaurante y el hall de ingreso al propio edificio. Un primer nivel aloja unidades de alquiler temporario y de uso profesional mientras el segundo nivel, viviendas permanentes con terrazas.
Un sistema de cerramiento continuo, de tejidos metálicos, da respuesta a los requerimientos de los diversos programas en sus distintos niveles, conforma el limite exterior del edificio y los desplazamientos de sus planos horizontales materializando semicubiertos en planta baja, espacios cubiertos sobre el primer nivel y descubiertos en el ultimo piso.
Edificio de usos mixtos
Ciudad de Buenos Aires
Proyecto: Federico Marino, arq.
Visualizaciones: Matias Llere, arq.
2022









