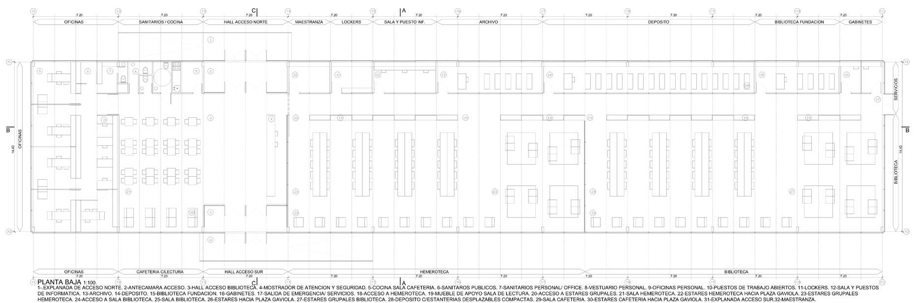
Ubicada sobre el sector norte de la actual Plaza Gaviola, la nueva biblioteca se presenta como un único volumen, un prisma recortado de una sola planta, ligeramente elevado sobre el nivel de la plaza con el objeto de mantener las vistas interiores de las salas por sobre las vistas exteriores y por sobre el manto de nieve en épocas invernales. El edificio lineal de reducido perímetro redefinirá así el borde norte de la Plaza Gaviola como nuevo patio de la Biblioteca Leo Falicov.
La estructura se conforma por una sencilla retícula de pórticos de columnas y vigas de HºAº que le confieren al edificio el aislamiento ignifugo necesario al mismo tiempo que responde a los aspectos sísmicos requeridos por la zona.
Proyecto:
Federico Marino, arq.
Colaboradores:
Matias Llere, Sebastian Cipolloni.
Asesores:
Estructuras: Ing. Stescovich.
Inst. Sanitaria: Arq. Beverati.
Inst. Electrica: Ing. Ansaldo.
Inst. Termomecánica: Ing.Gaviño / Ing. Nieto.
Paisajismo: Ing. Gonzalez.




